3D графика: Глобус

Декоративный элемент "Глобус"

  • 3D графика: Глобус
  • 3D графика: Глобус
  • 3D графика: Глобус
  • 3D графика: Глобус
  • 3D графика: Глобус
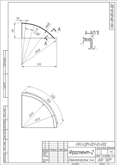
На ТРЦ "КИТ" установлено 2 малых глобуса d=3,2м и один большой d=4,1м. Глобус выполнен из стеклопластика s=4мм. Меридианы и параллели выполнены из лед-неона.

Комментарии: 0

Пока нет комментариев, ваш комментарий будет первым!